二世帯戸建リノベーション
事例をお気に入りに登録しました。
事例をお気に入りに登録しました。
| 施工金額 | 2,000万円(税込) |
|---|---|
| 物件種別 | 戸建 |
| リノベーション形態 | 持ち家をリノベーション |
| リノベーション内容 | 家全体,水まわり,居室・その他,断熱改修 |
| 居住人数 | 4人 |
| 家族構成 | ファミリー |
| 築年数 | 34年 |
|---|---|
| エリア | 東海 |
| 面積 | 91.12㎡ |
| 施工期間 | 約2.5カ月 |
| 構造 | 鉄骨造3階建 |
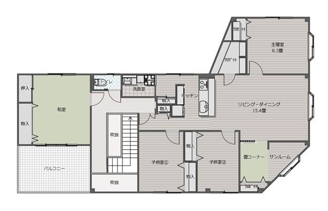
間取り
BeforeBefore

AfterAfter

⼿掛けたリノベーション会社
株式会社レベル(RENOAS)
| 所在地 | 〒464-0821 愛知県名古屋市千種区末盛通1-18-1 |
| 対応エリア | 愛知県 |
| 連絡先 | 052-737-3513 |
この会社のリノベーション事例
-
我が家のリビングで『おうちパン教室』
株式会社レベル
2025.09.25
- 戸建
- 持ち家をリノベーション
- ファミリー
- 水まわり
- 居室・その他
-
新築の建売住宅を買って さらに好みにリノベするというアイデア
株式会社レベル
2025.09.25
- 戸建
- 持ち家をリノベーション
- 二人暮らし
- 家全体
- 水まわり
- 居室・その他
- 屋外
-
かわいいご家族、ワンちゃんのための広々LDK
株式会社レベル
2025.09.24
- マンション
- 持ち家をリノベーション
- ファミリー
- 水まわり
- 居室・その他
-
明るく生まれ変わった我が家で、充実のセカンドライフ
株式会社レベル
2025.09.24
- マンション
- 持ち家をリノベーション
- 二人暮らし
- 家全体
- 水まわり
- 居室・その他
-
3LDKより1LDK+たっぷり収納!2人暮らしにぴったり!
株式会社レベル
2025.09.22
- マンション
- 中古を買ってリノベーション
- 二人暮らし
- 家全体
- 水まわり
- 居室・その他
- 断熱改修
-
コンパクトな動線と遊び心ある間取りノベ
株式会社レベル
2025.09.24
- 戸建
- 持ち家をリノベーション
- 一人暮らし
- 水まわり
- 居室・その他
- 断熱改修
-
独立型キッチンを収納部屋に! LDを快適なLDKに再構築
株式会社レベル
2025.09.22
- 戸建
- 持ち家をリノベーション
- ファミリー
- 家全体
- 水まわり
- 居室・その他
- 屋外
- 断熱改修
⼿掛けたリノベーション会社












元々二世帯仕様の建物ではなく1階でメインの家事を済ます間取りだったため、2階にはシステムキッチンも洗濯機置き場もなく、2階フロアで子世帯の家族4人が暮らす事のできる間取りではありませんでした。
そこで店舗併設型の鉄骨造3階建ての2階に、ご子息ご一家のための”家”をリノベーションしました。
施主様の奥様はもともと収納の達人でインテリアのセンスも抜群です。「とにかく、あちこちにモノが出しっぱなしになっていたり、生活感のある家電や道具類が見えているのが苦痛。家具も可能な限り増やさないのが理想です」と、奥様。
そこで、暮らしのあらゆるモノが完璧に収納できるように、大型パントリー、ウォークインクローゼット、収納庫を造作し、インテリアのアクセントになるキッチン背面の棚以外は、視界に入らない場所に配置。構造上わずかにあまった遊びの部分に可動棚を設け、厳選した雑貨を飾れるようにしました。さらに、リビングの一部に琉球畳をあしらった多目的スペースを作っていますが、お子様のおもちゃも壁側に置くだけの手軽さで、部屋中のどこからも視線に入ってこない絶妙な位置にパーテーションがあるので、キッチンに立ってもリビングのソファで寛ぐ時も、視界を常にすっきりと保てます。