貸家ガレージハウスリノベーション
事例をお気に入りに登録しました。
事例をお気に入りに登録しました。
| 施工金額 | 710万円(税込) |
|---|---|
| 物件種別 | 戸建 |
| リノベーション形態 | 賃貸リノベーション |
| リノベーション内容 | 家全体 |
| 居住人数 | 3人 |
| 家族構成 | その他 |
| 築年数 | 38年 |
|---|---|
| エリア | 首都圏 |
| 面積 | 108.90㎡ |
| 施工期間 | 3ヶ月 |
| 構造 | 木造 |
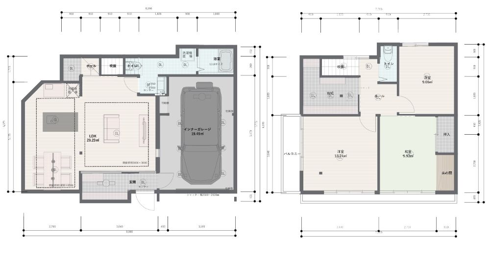
間取り
Before施工前間取り

After施工後間取り

⼿掛けたリノベーション会社
株式会社令和コーポレーション(リノベⓇHOUSE)
| 所在地 | 〒216-0044 神奈川県川崎市宮前区西野川2-22-12-302 |
| 対応エリア | 東京都・神奈川県 |
| 連絡先 | 044-872-8567 |
この会社のリノベーション事例
-
築40年以上の戸建てを今風にリノベーション
株式会社令和コーポレーション
2025.10.20
- 戸建
- 持ち家をリノベーション
- ファミリー
- 家全体
- 水まわり
- 居室・その他
-
狭くて⼼配?お任せ下さい! ⼾建てフルリノベーション
株式会社令和コーポレーション
2025.04.07
- 戸建
- 持ち家をリノベーション
- ファミリー
- 家全体
- 水まわり
- 居室・その他
- 屋外
-
⼆世帯で住む⼾建てフルリノベーション
株式会社令和コーポレーション
2025.07.07
- 戸建
- 持ち家をリノベーション
- 二世帯・三世帯
- 家全体
-
モノトーンのオシャレなお住まいへ! 戸建てフルリノベーション
株式会社令和コーポレーション
2025.03.28
- 戸建
- 持ち家をリノベーション
- ファミリー
- 家全体
- 水まわり
- 居室・その他
- 屋外
-
内装~外壁塗装まで 戸建て賃貸リノベーション
株式会社令和コーポレーション
2025.07.28
- 戸建
- 賃貸リノベーション
- ファミリー
- 家全体
-
ひとり暮らしをもっと快適に! マンションリノベーション
株式会社令和コーポレーション
2025.04.07
- マンション
- 持ち家をリノベーション
- 一人暮らし
- 居室・その他
-
中古物件を快適に大改修! 戸建てフルリフォーム
株式会社令和コーポレーション
2025.04.04
- 戸建
- 中古を買ってリノベーション
- 二世帯・三世帯
-
家族が喜ぶ理想の空間へ マンションフルリフォーム
株式会社令和コーポレーション
2025.04.01
- マンション
- 中古を買ってリノベーション
- ファミリー
⼿掛けたリノベーション会社













2階部分にあった水回りを1階部分に移動したため、生活導線が作りやすくなりました。
その分居住スペースは2階にまとめているため、階段部分も移動しやすいよう改修しています。
築30年以上の木造戸建て住宅を、賃貸用のガレージハウスへリノベーション。貸家運用するにあたり、1階の右側居室部分をガレージに改修いたしました。LDKはブラックのすっきりとした内装に、ウッドワンの可愛らしいキッチンと間接照明が際立ち、大人の落ち着きのあるお住まいに。