暮らしの延長にあるドッグカフェ
事例をお気に入りに登録しました。
事例をお気に入りに登録しました。
| 施工金額 | 1,500万円(税込) |
|---|---|
| 物件種別 | 戸建 |
| リノベーション形態 | 中古を買ってリノベーション |
| リノベーション内容 | 家全体,水まわり,居室・その他,屋外,耐震補強,断熱改修 |
| 居住人数 | 2人 |
| 家族構成 | 二人暮らし |
| 築年数 | 44年 |
|---|---|
| エリア | 九州・沖縄 |
| 面積 | 121.97㎡ |
| 施工期間 | 3ヶ月 |
| 構造 | 木造 |
間取り
Before7K

After2SLDK+店舗

⼿掛けたリノベーション会社
この会社のリノベーション事例
-
過去と未来をつなぐ、暮らしの舞台
銀杏開発株式会社
2025.09.16
- 戸建
- 持ち家をリノベーション
- 二世帯・三世帯
- 家全体
- 水まわり
- 居室・その他
- 屋外
- 断熱改修
-
構造美を纏う住まい
銀杏開発株式会社
2025.09.16
- マンション
- 中古を買ってリノベーション
- ファミリー
- 水まわり
- 居室・その他
-
美しい採光が訪れた人に感動を与える和モダンリノベーション
銀杏開発株式会社
2024.09.20
- 戸建
- 中古を買ってリノベーション
- 二人暮らし
- 家全体
- 水まわり
- 居室・その他
- 屋外
- 耐震補強
-
アンビリーバボーなアイデアで変化する空間ステージ
銀杏開発株式会社
2024.09.20
- マンション
- 中古を買ってリノベーション
- 一人暮らし
- 家全体
- 水まわり
- 居室・その他
-
新たな人の往来がはじまる 古民家の宿「陽✴︎月」
銀杏開発株式会社
2024.09.19
- 戸建
- 中古を買ってリノベーション
- ファミリー
- 家全体
- 水まわり
- 居室・その他
- 屋外
-
円の家
銀杏開発株式会社
2023.09.20
- 戸建
- 中古を買ってリノベーション
- ファミリー
- 家全体
- 水まわり
- 居室・その他
- 屋外
- 耐震補強
- 断熱改修
-
背伸びしすぎないちょうどイイ住まい。
銀杏開発株式会社
2023.09.20
- 戸建
- 中古を買ってリノベーション
- ファミリー
- 家全体
- 水まわり
- 居室・その他
- 屋外
- 耐震補強
- 断熱改修
-
光と風が回遊するホテルライクな暮らし
銀杏開発株式会社
2023.09.20
- 戸建
- 中古を買ってリノベーション
- 二人暮らし
- 家全体
- 水まわり
- 居室・その他
- 屋外
- 耐震補強
- 断熱改修
⼿掛けたリノベーション会社













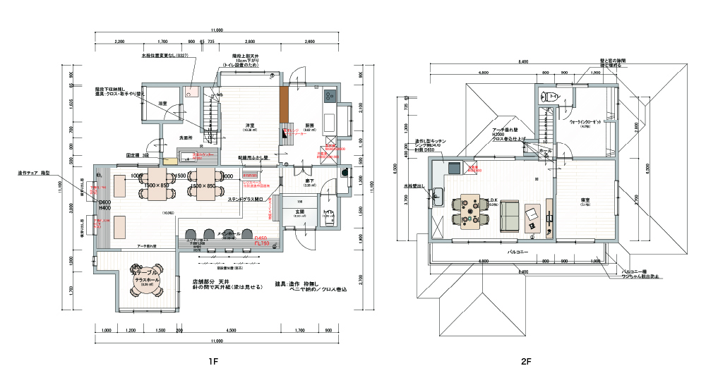
庭付きで、1・2階合わせて十分な広さがある築42年の住宅。庭からは田園風景を望め、閑静な環境ながら駅にも近いという立地で、店舗兼住宅を希望されていた施主様の理想にぴったりでした。室内はレトロな柄のクッションフロアやアコーディオンカーテン、床の間や押し入れなど、昭和らしい趣のある造り。備え付け家具のように活かせる部分は残しつつ、予算内でのリノベーションを目指しました。
【築42年 店舗リノベ】
一般住宅だった中古住宅をリノベーションし、愛犬家のご夫婦が開いたドッグカフェ。熊本では少ない「愛犬と一緒に室内で過ごせる場所」を、自らの暮らしと経験を活かして形にしました。
玄関から続く床材が空間に広がりをもたらし、ワンちゃん連れでもスムーズに入店可能。既存の窓枠は施主様がDIYでアイアン塗装を施し、店内の落ち着いた雰囲気に調和。入口やレジまわりは、奥様手づくりのステンドグラスが彩りを添えます。
庭には自作のドッグランを併設し、室内アーチをくぐったウッドデッキのあるテラス席からは、元気に走り回る愛犬の姿を眺めながらくつろげる設計に。通路幅を広くとったカフェスペースは、将来的にパン教室などのイベントにも対応可能。犬種別の交流会や撮影会も定期開催され、地域の愛犬家に愛される場所へと進化を続けています。