過去と未来をつなぐ、暮らしの舞台
事例をお気に入りに登録しました。
事例をお気に入りに登録しました。
| 施工金額 | 2,200万円(税込) |
|---|---|
| 物件種別 | 戸建 |
| リノベーション形態 | 持ち家をリノベーション |
| リノベーション内容 | 家全体,水まわり,居室・その他,屋外,断熱改修 |
| 居住人数 | 6人 |
| 家族構成 | 二世帯・三世帯 |
| 築年数 | 101年 |
|---|---|
| エリア | 九州・沖縄 |
| 面積 | 356.50㎡ |
| 施工期間 | 4ヶ月 |
| 構造 | 木造 |
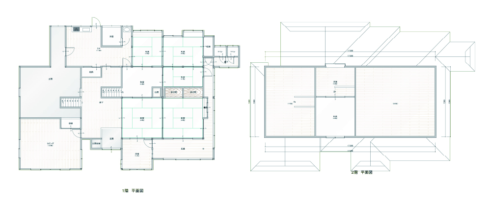
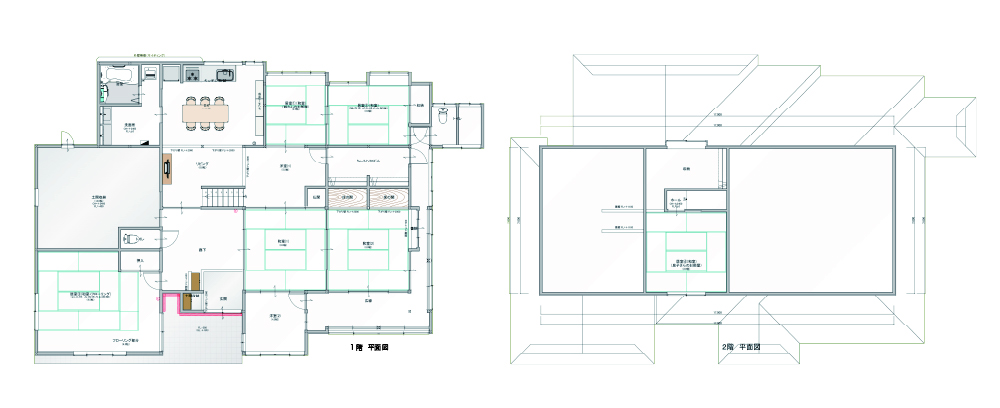
間取り
Before10SLDK

After6SLDK

⼿掛けたリノベーション会社
この会社のリノベーション事例
-
構造美を纏う住まい
銀杏開発株式会社
2025.09.16
- マンション
- 中古を買ってリノベーション
- ファミリー
- 水まわり
- 居室・その他
-
暮らしの延長にあるドッグカフェ
銀杏開発株式会社
2025.09.11
- 戸建
- 中古を買ってリノベーション
- 二人暮らし
- 家全体
- 水まわり
- 居室・その他
- 屋外
- 耐震補強
- 断熱改修
-
美しい採光が訪れた人に感動を与える和モダンリノベーション
銀杏開発株式会社
2024.09.20
- 戸建
- 中古を買ってリノベーション
- 二人暮らし
- 家全体
- 水まわり
- 居室・その他
- 屋外
- 耐震補強
-
アンビリーバボーなアイデアで変化する空間ステージ
銀杏開発株式会社
2024.09.20
- マンション
- 中古を買ってリノベーション
- 一人暮らし
- 家全体
- 水まわり
- 居室・その他
-
新たな人の往来がはじまる 古民家の宿「陽✴︎月」
銀杏開発株式会社
2024.09.19
- 戸建
- 中古を買ってリノベーション
- ファミリー
- 家全体
- 水まわり
- 居室・その他
- 屋外
-
円の家
銀杏開発株式会社
2023.09.20
- 戸建
- 中古を買ってリノベーション
- ファミリー
- 家全体
- 水まわり
- 居室・その他
- 屋外
- 耐震補強
- 断熱改修
-
背伸びしすぎないちょうどイイ住まい。
銀杏開発株式会社
2023.09.20
- 戸建
- 中古を買ってリノベーション
- ファミリー
- 家全体
- 水まわり
- 居室・その他
- 屋外
- 耐震補強
- 断熱改修
-
光と風が回遊するホテルライクな暮らし
銀杏開発株式会社
2023.09.20
- 戸建
- 中古を買ってリノベーション
- 二人暮らし
- 家全体
- 水まわり
- 居室・その他
- 屋外
- 耐震補強
- 断熱改修
⼿掛けたリノベーション会社













昔ながらの日本家屋で、縁側や続き間、広いリビングなどゆとりある空間が広がる古民家。家屋として十分な広さはあるものの、2階や縁側は物置となっていました。レトロなタイルが残るトイレやお風呂、公団型流し台のキッチンなど、水まわりには不便さも感じられました。
かつて祖父母が暮らしていた築100年以上の古民家。
しばらく空き家だったこの家に、別々に暮らしていたご両親と若夫婦が集まり、二世帯で暮らすためのリノベーションがはじまりました。
昔ながらの梁や柱など趣ある意匠は活かしつつ、断熱性や水まわり設備を見直し、暮らしやすさを整えた住まいに再生。既存窓はカバー工法で新しい窓に交換し、内窓も設置することで、古民家ならではの寒さや暑さを軽減し快適性を高めました。
ご両親世帯と若夫婦世帯が気兼ねなく過ごせるよう、プライバシーを保ちながらも程よくつながる間取りを計画。人の気配が途絶えていた家に、再び灯りがともり、笑い声や生活の音が響きはじめたことで、建物だけでなく地域にもあたたかな変化をもたらしています。
長らく人のいなかった古民家が、家族のつながりとともに新たな暮らしを紡ぎはじめる。
この家の新しい旅路は、ここからはじまります。