【中古戸建リノベ】2世帯住宅リノベーション
事例をお気に入りに登録しました。
事例をお気に入りに登録しました。
2026.02.21
| 施工金額 | 2,050万円(税込) |
|---|---|
| 物件種別 | 戸建 |
| リノベーション形態 | 持ち家をリノベーション |
| リノベーション内容 | |
| 居住人数 | 4人 |
| 家族構成 | 二世帯・三世帯 |
| 築年数 | 27年 |
|---|---|
| エリア | 首都圏 |
| 面積 | 210.56㎡ |
| 施工期間 | 3か月半 |
| 構造 | 木造 |
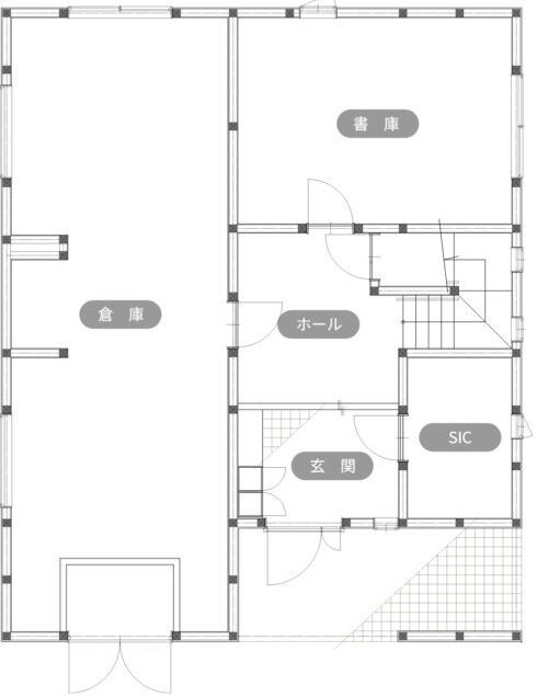
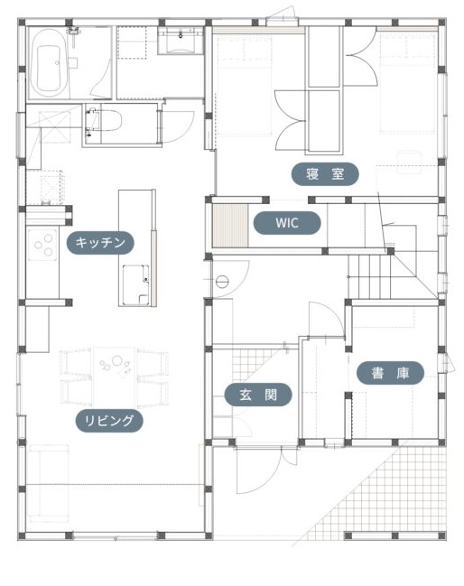
間取り
Before1LDK+WIC

After2LDK

⼿掛けたリノベーション会社
株式会社しあわせな家
| 所在地 | 〒221-0833 神奈川県横浜市神奈川区高島台27-1 ブローテ横浜高島台モール棟 |
| 対応エリア | 東京都・神奈川県 |
| 連絡先 | 045-308-9155 |
この会社のリノベーション事例
-
【中古×リノベ】鮮やかな色使いに魅せられる 大人可愛い空間
株式会社しあわせな家
2026.01.31
- マンション
- 中古を買ってリノベーション
- 二人暮らし
-
くつろぎスペースにこだわった猫ちゃんとの暮らし
株式会社しあわせな家
2025.11.15
- マンション
- 中古を買ってリノベーション
- 二人暮らし
-
働き盛り世代の心安らぐ住まいづくり
株式会社しあわせな家
2025.10.27
- マンション
- 中古を買ってリノベーション
- 二人暮らし
-
集い・笑顔あふれる30帖のLDK
株式会社しあわせな家
2025.09.19
- 戸建
- 中古を買ってリノベーション
- ファミリー
- 家全体
-
あの頃の団地、これからの暮らし。
株式会社しあわせな家
2025.09.08
- マンション
- 中古を買ってリノベーション
- 一人暮らし
- 家全体
- 水まわり
- 居室・その他
-
異国情緒あるアーチ開口 団地リノベーション part2
株式会社しあわせな家
2025.08.31
- マンション
- 中古を買ってリノベーション
- 一人暮らし
-
異国情緒あるアーチ開口 予算に優しい団地リノベーション
株式会社しあわせな家
2025.07.19
- マンション
- 中古を買ってリノベーション
- 一人暮らし
-
憧れのインテリアに囲まれた住まい part3
株式会社しあわせな家
2025.05.12
- マンション
- 持ち家をリノベーション
- 二人暮らし
⼿掛けたリノベーション会社











「先代から引き継いだ多くの書籍や仕事関係のものを、いつか息子の代に家を引き継ぐ時には整理しないといけないと思っていたんです。築27年なのでちょこちょこ修繕の必要も出てきていて、よし!このタイミングでやろうと決めました。」
既存1階のほとんどのスペースは書庫と倉庫、「保管するための空間」をいかに使い勝手のいい「暮らすための空間」に変えることができるか、それがリノベーションのポイントでした。
先々代から100年あまりこの地にお住まいのお客様。ご自身の代で建て替えた家を、息子さんご夫婦との同居を機に、2世帯住宅にすることにしました。新築時はお仕事関係の倉庫にしていた1階を、使い勝手のいい住空間へと生まれ変わらせた、きめ細やかな寄り添い力が光るリノベーションです。