「つながる家-集う家」
事例をお気に入りに登録しました。
事例をお気に入りに登録しました。
| 施工金額 | 2,500万円(税込) |
|---|---|
| 物件種別 | 戸建 |
| リノベーション形態 | 中古を買ってリノベーション |
| リノベーション内容 | 家全体,耐震補強,断熱改修 |
| 居住人数 | 3人 |
| 家族構成 | ファミリー |
| 築年数 | 55年 |
|---|---|
| エリア | 東海 |
| 面積 | 211.24㎡ |
| 施工期間 | 3ヶ月 |
| 構造 | 木造 |
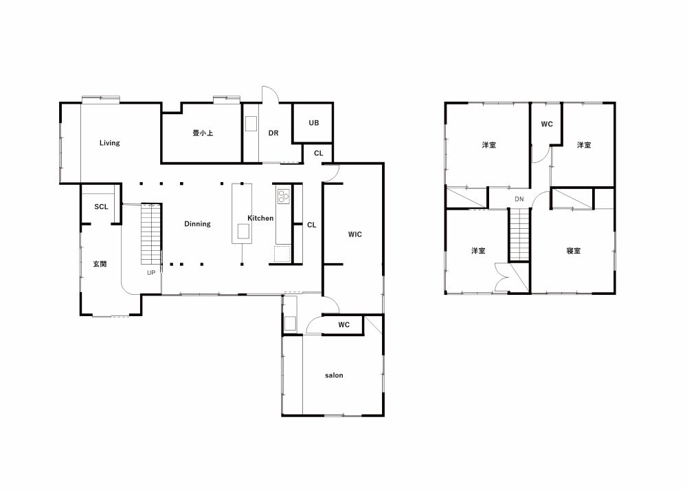
間取り
Before10DK

After5LDK

⼿掛けたリノベーション会社
株式会社ネクスト名和
| 所在地 | 〒501-0123 岐阜県岐阜市鏡島西3-3-13 |
| 対応エリア | 岐阜県・愛知県 |
| 連絡先 | 0120-00-9254 |
この会社のリノベーション事例
-
競争から共創へ 〜TAPから再編集〜
株式会社ネクスト名和
2025.09.15
-
間隙から生活と遊びの間/LifeShareSpace~noma~
株式会社ネクスト名和
2022.09.20
-
団地住まいの新時代
株式会社ネクスト名和
2022.09.20
- 戸建
- 中古を買ってリノベーション
- ファミリー
- 水まわり
- 居室・その他
- 屋外
-
アフターコロナで再花した郊外戸建リノベーションの価値
株式会社ネクスト名和
2021.09.20
- 戸建
- 中古を買ってリノベーション
- ファミリー
- 家全体
-
BRAND NEW DAY
株式会社ネクスト名和
2018.04.16
- 戸建
- 中古を買ってリノベーション
- ファミリー
- 水まわり
- 居室・その他
- 屋外
- 耐震補強
-
minus+
株式会社ネクスト名和
2021.09.20
- 戸建
- 中古を買ってリノベーション
- ファミリー
- 家全体
-
空中庭園と暮らす、駅近マンション
株式会社ネクスト名和
2020.09.23
- マンション
- 水まわり
- 居室・その他
- 断熱改修
-
賃貸リノベーションのニュースタンダード
株式会社ネクスト名和
2020.09.22
- マンション
- 賃貸リノベーション
- ファミリー
- 居室・その他
- 断熱改修
⼿掛けたリノベーション会社













築54年の間に幾度となく増改築された本物件。
平屋が増築され、離れがつながり、2階建てへと時間とともに移り変わってきた建物は、
構造的な観点も含め整える事が前提条件となった。
前所有者によってしっかりと管理されてきた建物の状態が計画する上で救いとなった。
岐阜県中津川市という、夏は蒸し暑く、冬は積雪は少ないものの氷点下まで冷え込むこの地域で、古民家の良さも活かしたい想いもありながらも、古民家の外観からは想像つかないギャップのある空間にしたいというお施主様の要望をどのように実現するかが課題であった。
家族との時間。友人たちが集まってのパーティー。親戚たちの集まり。
家族や友人がリラックスしながら楽しく過ごせる空間。
広いリビングとダイニングやキッチンでのびのびと暮らす。
この家での時間がみんなの大切な思い出となる。
暮らしにおける様々なシーンで人と人、時間が繋がっていく。
子供の成長と同じように住まいと家族の暮らしが時間と共に育まれていく家になってほしい、そんな想いのこもった家。
家族や親せき、友人などが毎週のように集まり楽しく過ごす。
そんな自分たちの暮らしの本質を考えた時、中古住宅である本物件を購入しリノベーションすることとなった。
「みんな集まれる空間にしたい。」「物件のテイストも残しながらも元の外観から想像できない間取りや内装にしたい」がというお施主様のご要望にもある通り、たくさんの人に囲まれた暮らしが、印象的なご家族だった。
増改築が繰り返された建物であったため、まずは、構造的な観点からの検討を行い、柱の追加や移設、火打ち梁や耐力壁の追加などを行った。
間仕切りの少ない、ひと続きの空間でありながらも、床や天井のレベルの操作、マテリアルを使い分けることで、それぞれの空間の質を変え、様々な居場所となるよう設計を行った。