まるく つつまれて
事例をお気に入りに登録しました。
事例をお気に入りに登録しました。
| 施工金額 | 1,200万円(税込) |
|---|---|
| 物件種別 | マンション |
| リノベーション形態 | 中古を買ってリノベーション |
| リノベーション内容 | 家全体,水まわり,居室・その他 |
| 居住人数 | 2人 |
| 家族構成 | 二人暮らし |
| 築年数 | 33年 |
|---|---|
| エリア | 関西 |
| 面積 | 65.46㎡ |
| 施工期間 | 3ヶ月 |
| 構造 |
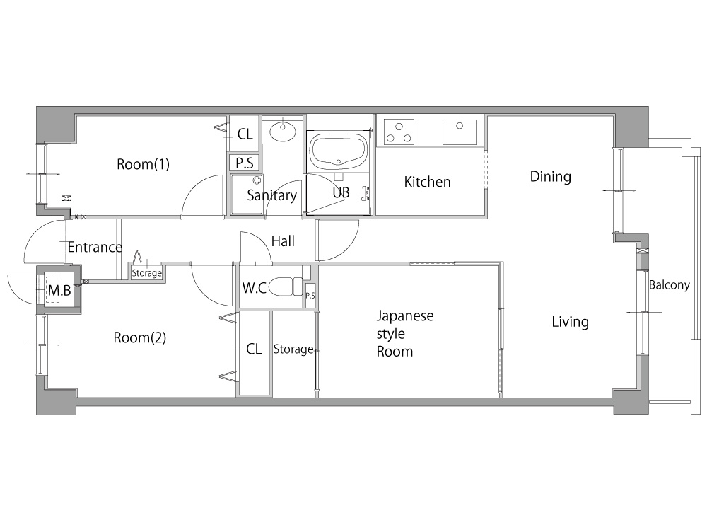
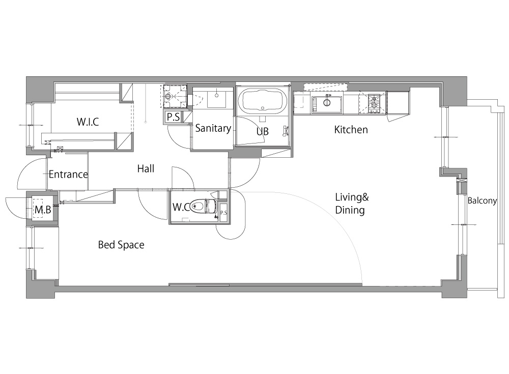
間取り
Before3LDK

After1LDK+WIC

⼿掛けたリノベーション会社
株式会社サンリフォーム(ハコリノベ)
| 所在地 | 〒550-0015 大阪府大阪市西区南堀江3-2-1 プラザ10ビル |
| 対応エリア | 東京都・神奈川県・京都府・大阪府・兵庫県 |
| 連絡先 | 0120-985-115 |
この会社のリノベーション事例
-
アートと暮らす
株式会社サンリフォーム
2026.03.30
- マンション
- 中古を買ってリノベーション
- 二人暮らし
- 家全体
- 水まわり
- 居室・その他
-
ひとつづきにくらす
株式会社サンリフォーム
2026.03.25
- マンション
- 中古を買ってリノベーション
- 一人暮らし
- 家全体
- 水まわり
- 居室・その他
-
日々を味わう
株式会社サンリフォーム
2026.03.06
- マンション
- 持ち家をリノベーション
- 二人暮らし
- 家全体
- 水まわり
- 居室・その他
-
静謐な間 – tatema
株式会社サンリフォーム
2026.02.04
- マンション
- 中古を買ってリノベーション
- ファミリー
- 家全体
- 水まわり
- 居室・その他
-
住み継ぐ家
株式会社サンリフォーム
2025.12.19
- 戸建
- 持ち家をリノベーション
- 二世帯・三世帯
- 家全体
- 水まわり
- 居室・その他
-
canvas
株式会社サンリフォーム
2025.12.19
- マンション
- 中古を買ってリノベーション
- ファミリー
- 家全体
- 水まわり
- 居室・その他
-
透明な境界
株式会社サンリフォーム
2025.11.17
- マンション
- 中古を買ってリノベーション
- 二人暮らし
- 家全体
- 水まわり
- 居室・その他
-
アールの向こう側
株式会社サンリフォーム
2025.11.17
- マンション
- 中古を買ってリノベーション
- 二人暮らし
- 家全体
- 水まわり
- 居室・その他
⼿掛けたリノベーション会社













築32年のマンションをフルリノベーション。
カーペットの上でゴロゴロしていても、キッチンで料理をしていても、ベッドで静かに休んでいても。 それぞれが思い思いに過ごしながら、同じ空間を共有している安心感を大切にした住まいです。 ひと続きのワンルームのような開放感を持ちながら、少し閉じたようなプライベート感も大切にした間取りが特徴。天井や床、カウンターに取り入れたアールが、壁の代わりとなってやわらかに空間を整えます。 各スペースは用途を限定せず、テーブルセットはベッドスペースのそばに置いたり、来客時にはキッチンへ移動して会話を楽しむ場にしたりと自在にアレンジ可能。 日常にもゲストシーンにも柔軟に対応できるレイアウトです。 インテリアは、ブラックチェリーのフローリングとグレージュのカーペットを基調に、廊下にはラワンのオリジナルドアを。 落ち着いた色調の中に、お手持ちの家具や小物が自然と馴染み、施主様の雰囲気を映し出すような色合いに。 同じ空間にいる安心感と、自分のペースも大切にする、そのバランスが暮らしの豊かさにつながります。