静謐な間 – tatema
事例をお気に入りに登録しました。
事例をお気に入りに登録しました。
| 施工金額 | 1,200万円(税込) |
|---|---|
| 物件種別 | マンション |
| リノベーション形態 | 中古を買ってリノベーション |
| リノベーション内容 | 家全体,水まわり,居室・その他 |
| 居住人数 | 3人 |
| 家族構成 | ファミリー |
| 築年数 | 31年 |
|---|---|
| エリア | 関西 |
| 面積 | 61.66㎡ |
| 施工期間 | 4ヶ月半 |
| 構造 |
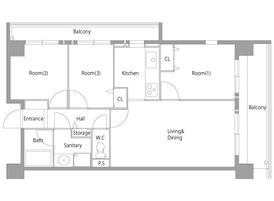
間取り
Before3LDK

After2LDK+WIC

⼿掛けたリノベーション会社
株式会社サンリフォーム(ハコリノベ)
| 所在地 | 〒550-0015 大阪府大阪市西区南堀江3-2-1 プラザ10ビル |
| 対応エリア | 東京都・神奈川県・京都府・大阪府・兵庫県 |
| 連絡先 | 0120-985-115 |
この会社のリノベーション事例
-
住み継ぐ家
株式会社サンリフォーム
2025.12.19
- 戸建
- 持ち家をリノベーション
- 二世帯・三世帯
- 家全体
- 水まわり
- 居室・その他
-
canvas
株式会社サンリフォーム
2025.12.19
- マンション
- 中古を買ってリノベーション
- ファミリー
- 家全体
- 水まわり
- 居室・その他
-
透明な境界
株式会社サンリフォーム
2025.11.17
- マンション
- 中古を買ってリノベーション
- 二人暮らし
- 家全体
- 水まわり
- 居室・その他
-
まるく つつまれて
株式会社サンリフォーム
2025.11.17
- マンション
- 中古を買ってリノベーション
- 二人暮らし
- 家全体
- 水まわり
- 居室・その他
-
アールの向こう側
株式会社サンリフォーム
2025.11.17
- マンション
- 中古を買ってリノベーション
- 二人暮らし
- 家全体
- 水まわり
- 居室・その他
-
Folks Nest
株式会社サンリフォーム
2025.11.15
- マンション
- 中古を買ってリノベーション
- 二人暮らし
- 家全体
- 水まわり
- 居室・その他
-
Louver
株式会社サンリフォーム
2025.11.15
- マンション
- 持ち家をリノベーション
- 二人暮らし
- 家全体
- 水まわり
- 居室・その他
-
それぞれの基地
株式会社サンリフォーム
2025.11.15
- マンション
- 中古を買ってリノベーション
- 二人暮らし
- 家全体
- 水まわり
- 居室・その他
⼿掛けたリノベーション会社











築30年、61㎡の中古マンションをリノベーション。
規則的に刻まれる、心地よく整ったデザインに「どこか実家のお寺を感じて落ち着く」と、tatemaを選ばれたT様。「間」をテーマにした空間づくりや静けさを大切にしたスタイルに、ご自身との共通点を感じ取られたのかもしれません。 リビングを象徴するのはT様がリノベーションで叶えたかった、本を飾るように収納するための可動棚。 迷いながら選ばれた配置は、最終的にセンスが光るディスプレイとなり、空間に個性を加えています。 また、水まわりの仕様や内装素材を提案の中から選んでいくtatemaの進め方は、打ち合わせ時間が限られるT様にとっても負担が少なく進められるプロセスでした。 独立されたお子さまが時折泊まりに来られることからフリースペースを備えたプランとし、リブパネルを用いたウォークインクローゼットの壁は、収納でありながらさりげなくデザイン性を感じます。 暮らしに必要な機能を無理なく落とし込んだ、すっきりとした構成に。 tatemaというベースがありながら、置くものや暮らし方によって自然とT様らしさが感じられる住まいに仕上がりました。