canvas
事例をお気に入りに登録しました。
事例をお気に入りに登録しました。
| 施工金額 | 1,240万円(税込) |
|---|---|
| 物件種別 | マンション |
| リノベーション形態 | 中古を買ってリノベーション |
| リノベーション内容 | 家全体,水まわり,居室・その他 |
| 居住人数 | 4人 |
| 家族構成 | ファミリー |
| 築年数 | 45年 |
|---|---|
| エリア | 関西 |
| 面積 | 75.00㎡ |
| 施工期間 | 3か月 |
| 構造 |
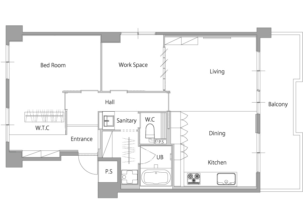
間取り
Before4LDK

After4LDK

⼿掛けたリノベーション会社
株式会社サンリフォーム(ハコリノベ)
| 所在地 | 〒550-0015 大阪府大阪市西区南堀江3-2-1 プラザ10ビル |
| 対応エリア | 東京都・神奈川県・京都府・大阪府・兵庫県 |
| 連絡先 | 0120-985-115 |
この会社のリノベーション事例
-
アートと暮らす
株式会社サンリフォーム
2026.03.30
- マンション
- 中古を買ってリノベーション
- 二人暮らし
- 家全体
- 水まわり
- 居室・その他
-
ひとつづきにくらす
株式会社サンリフォーム
2026.03.25
- マンション
- 中古を買ってリノベーション
- 一人暮らし
- 家全体
- 水まわり
- 居室・その他
-
日々を味わう
株式会社サンリフォーム
2026.03.06
- マンション
- 持ち家をリノベーション
- 二人暮らし
- 家全体
- 水まわり
- 居室・その他
-
静謐な間 – tatema
株式会社サンリフォーム
2026.02.04
- マンション
- 中古を買ってリノベーション
- ファミリー
- 家全体
- 水まわり
- 居室・その他
-
住み継ぐ家
株式会社サンリフォーム
2025.12.19
- 戸建
- 持ち家をリノベーション
- 二世帯・三世帯
- 家全体
- 水まわり
- 居室・その他
-
透明な境界
株式会社サンリフォーム
2025.11.17
- マンション
- 中古を買ってリノベーション
- 二人暮らし
- 家全体
- 水まわり
- 居室・その他
-
まるく つつまれて
株式会社サンリフォーム
2025.11.17
- マンション
- 中古を買ってリノベーション
- 二人暮らし
- 家全体
- 水まわり
- 居室・その他
-
アールの向こう側
株式会社サンリフォーム
2025.11.17
- マンション
- 中古を買ってリノベーション
- 二人暮らし
- 家全体
- 水まわり
- 居室・その他
⼿掛けたリノベーション会社













築42年のマンションをフルリノベーション。
異なるふたつの表情をもつLDK。 リビングには壁と天井にラワン材を用い、木の質感が空間にあたたかみをもたらします。 対照的に、ダイニングキッチンは打ちっぱなしのコンクリート天井にグレーの床、ステンレスキッチンが並ぶ、素材の硬質さを活かしたクールな印象に。 床にゆるやかな段差を設けることで、視覚的にも空間が切り替わり、用途ごとのゾーニングが明確になりました。 また、床上げすることで「ダイニングからTVを見やすい」「ソファの位置が自然と決まって、暮らしやすい」といった嬉しい気付きもありました。 空間全体はどこか懐かしさを感じる素材と色味をベースに、レトロな雰囲気の家具や小物がアクセントとなる構成に仕上がりました。