ひとつづきにくらす
事例をお気に入りに登録しました。
事例をお気に入りに登録しました。
| 施工金額 | 1,200万円(税込) |
|---|---|
| 物件種別 | マンション |
| リノベーション形態 | 中古を買ってリノベーション |
| リノベーション内容 | 家全体,水まわり,居室・その他 |
| 居住人数 | 1人 |
| 家族構成 | 一人暮らし |
| 築年数 | 23年 |
|---|---|
| エリア | 関西 |
| 面積 | 56.31㎡ |
| 施工期間 | 3か月 |
| 構造 |
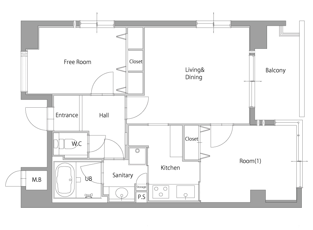
間取り
Before2LDK

After1LDK+WTC

⼿掛けたリノベーション会社
株式会社サンリフォーム(ハコリノベ)
| 所在地 | 〒550-0015 大阪府大阪市西区南堀江3-2-1 プラザ10ビル |
| 対応エリア | 東京都・神奈川県・京都府・大阪府・兵庫県 |
| 連絡先 | 0120-985-115 |
この会社のリノベーション事例
-
日々を味わう
株式会社サンリフォーム
2026.03.06
- マンション
- 持ち家をリノベーション
- 二人暮らし
- 家全体
- 水まわり
- 居室・その他
-
静謐な間 – tatema
株式会社サンリフォーム
2026.02.04
- マンション
- 中古を買ってリノベーション
- ファミリー
- 家全体
- 水まわり
- 居室・その他
-
住み継ぐ家
株式会社サンリフォーム
2025.12.19
- 戸建
- 持ち家をリノベーション
- 二世帯・三世帯
- 家全体
- 水まわり
- 居室・その他
-
canvas
株式会社サンリフォーム
2025.12.19
- マンション
- 中古を買ってリノベーション
- ファミリー
- 家全体
- 水まわり
- 居室・その他
-
透明な境界
株式会社サンリフォーム
2025.11.17
- マンション
- 中古を買ってリノベーション
- 二人暮らし
- 家全体
- 水まわり
- 居室・その他
-
まるく つつまれて
株式会社サンリフォーム
2025.11.17
- マンション
- 中古を買ってリノベーション
- 二人暮らし
- 家全体
- 水まわり
- 居室・その他
-
アールの向こう側
株式会社サンリフォーム
2025.11.17
- マンション
- 中古を買ってリノベーション
- 二人暮らし
- 家全体
- 水まわり
- 居室・その他
-
Folks Nest
株式会社サンリフォーム
2025.11.15
- マンション
- 中古を買ってリノベーション
- 二人暮らし
- 家全体
- 水まわり
- 居室・その他
⼿掛けたリノベーション会社













築22年、56.31㎡の中古マンションをリノベーション。
帰宅してすぐ、LDKが開けた間取りにしたい。というN様のご希望から住まいづくりがスタートしました。 住まいの中心に据えたのは、モルタル仕上げのダイニングカウンターと一体となったキッチン。 Ⅱ型レイアウトを採用し、設備配管の位置を踏まえ、シンク側とコンロ側を少しずらして配置。玄関からもリビングからもアクセスしやすい動線を実現しました。 オープンなキッチンだからこそ、設備機器も存在感のあるものをセレクト。空間のアクセントとしての役割も担っています。空間の主役となるこの場所を囲むように、日々の食事やゲストとの時間を過ごせます。 また、ベッドスペースはLDKから直接視線が届きにくい位置にレイアウト。ワンルームのような開放感を保ちながらも、空間にメリハリをもたらしています。 ゆるやかにつながる室内には、住まいの各所に吊るされたグリーンが点在し、シックな色合いでまとめたインテリアの中に彩りをプラス。 そんな空間の中で、自然光が差し込む明るいキッチンでコーヒーを淹れるひとときが、新しく始まった暮らしの一場面となりました。