アートと暮らす
事例をお気に入りに登録しました。
事例をお気に入りに登録しました。
| 施工金額 | 1,700万円(税込) |
|---|---|
| 物件種別 | マンション |
| リノベーション形態 | 中古を買ってリノベーション |
| リノベーション内容 | 家全体,水まわり,居室・その他 |
| 居住人数 | 2人 |
| 家族構成 | 二人暮らし |
| 築年数 | 27年 |
|---|---|
| エリア | 関西 |
| 面積 | 93.99㎡ |
| 施工期間 | 5か月 |
| 構造 |
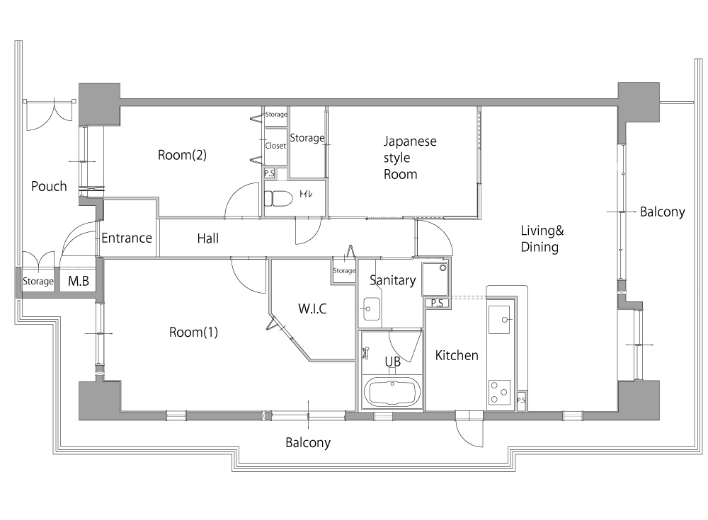
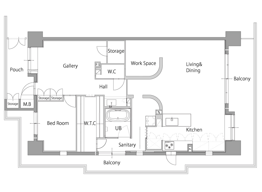
間取り
Before3LDK

After1LDK+画廊

⼿掛けたリノベーション会社
株式会社サンリフォーム(ハコリノベ)
| 所在地 | 〒550-0015 大阪府大阪市西区南堀江3-2-1 プラザ10ビル |
| 対応エリア | 東京都・神奈川県・京都府・大阪府・兵庫県 |
| 連絡先 | 0120-985-115 |
この会社のリノベーション事例
-
ひとつづきにくらす
株式会社サンリフォーム
2026.03.25
- マンション
- 中古を買ってリノベーション
- 一人暮らし
- 家全体
- 水まわり
- 居室・その他
-
日々を味わう
株式会社サンリフォーム
2026.03.06
- マンション
- 持ち家をリノベーション
- 二人暮らし
- 家全体
- 水まわり
- 居室・その他
-
静謐な間 – tatema
株式会社サンリフォーム
2026.02.04
- マンション
- 中古を買ってリノベーション
- ファミリー
- 家全体
- 水まわり
- 居室・その他
-
住み継ぐ家
株式会社サンリフォーム
2025.12.19
- 戸建
- 持ち家をリノベーション
- 二世帯・三世帯
- 家全体
- 水まわり
- 居室・その他
-
canvas
株式会社サンリフォーム
2025.12.19
- マンション
- 中古を買ってリノベーション
- ファミリー
- 家全体
- 水まわり
- 居室・その他
-
透明な境界
株式会社サンリフォーム
2025.11.17
- マンション
- 中古を買ってリノベーション
- 二人暮らし
- 家全体
- 水まわり
- 居室・その他
-
まるく つつまれて
株式会社サンリフォーム
2025.11.17
- マンション
- 中古を買ってリノベーション
- 二人暮らし
- 家全体
- 水まわり
- 居室・その他
-
アールの向こう側
株式会社サンリフォーム
2025.11.17
- マンション
- 中古を買ってリノベーション
- 二人暮らし
- 家全体
- 水まわり
- 居室・その他
⼿掛けたリノベーション会社













築26年、93.99㎡の中古マンションをリノベーション。
「家にギャラリーをつくりたい」という想いから住まいづくりがはじまりました。 広さにゆとりのある物件を探し、暮らしとギャラリーが一体となる住まいを構想。玄関横の一室分を、大胆にギャラリースペースとして整えました。 ギャラリーは、作品そのものが際立つ空間に。床をホワイトで塗装することで、住空間とゆるやかにゾーニングしています。 奥には作品を収納するスペースもしっかり確保し、本格的な仕様に。 展示を入れ替えるたびに空間の表情が変わる楽しみが生活に加わりました。 インテリアで使用する素材はできる限りシンプルなものを選び、木の要素はなるべく排除。左官やモルタル、金属といった無機質な質感で構成しています。 リビングの壁面には、迫力のある大きなカウンターを造作。生活の場でありながら、アートを身近に飾れるスペースです。 ギャラリーを巡ることが好きなK様にとって、アートは暮らしの延長線上にあるもの。ギャラリーに住んでいるような、静けさと余白を日常の中で感じる住まいとなりました。