透明な境界
事例をお気に入りに登録しました。
事例をお気に入りに登録しました。
| 施工金額 | 1,500万円(税込) |
|---|---|
| 物件種別 | マンション |
| リノベーション形態 | 中古を買ってリノベーション |
| リノベーション内容 | 家全体,水まわり,居室・その他 |
| 居住人数 | 2人 |
| 家族構成 | 二人暮らし |
| 築年数 | 31年 |
|---|---|
| エリア | 首都圏 |
| 面積 | 61.84㎡ |
| 施工期間 | 3ヶ月 |
| 構造 |
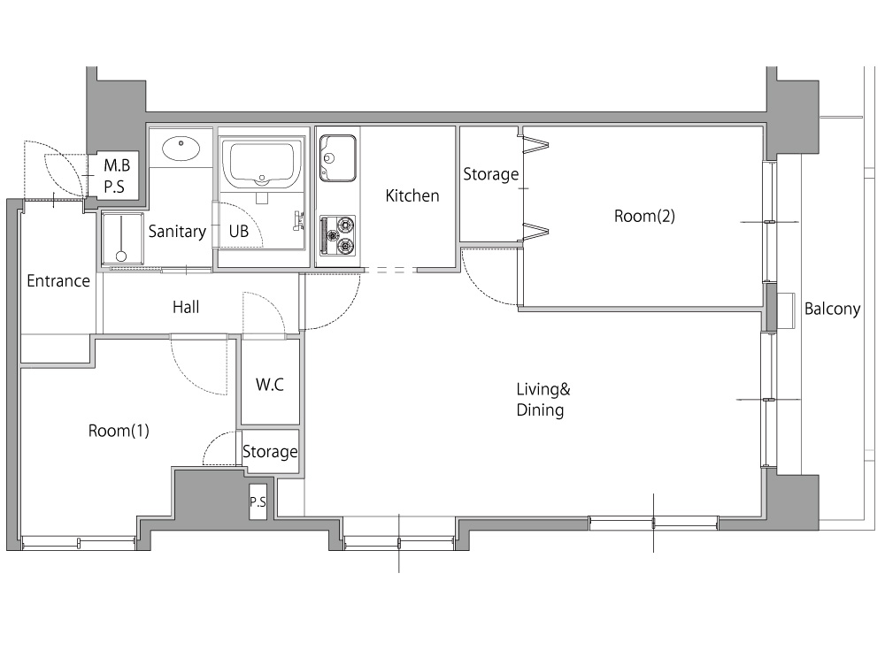
間取り
Before2LDK

After2LDK+WIC

⼿掛けたリノベーション会社
株式会社サンリフォーム(ハコリノベ)
| 所在地 | 〒550-0015 大阪府大阪市西区南堀江3-2-1 プラザ10ビル |
| 対応エリア | 東京都・神奈川県・京都府・大阪府・兵庫県 |
| 連絡先 | 0120-985-115 |
この会社のリノベーション事例
-
静謐な間 – tatema
株式会社サンリフォーム
2026.02.04
- マンション
- 中古を買ってリノベーション
- ファミリー
- 家全体
- 水まわり
- 居室・その他
-
住み継ぐ家
株式会社サンリフォーム
2025.12.19
- 戸建
- 持ち家をリノベーション
- 二世帯・三世帯
- 家全体
- 水まわり
- 居室・その他
-
canvas
株式会社サンリフォーム
2025.12.19
- マンション
- 中古を買ってリノベーション
- ファミリー
- 家全体
- 水まわり
- 居室・その他
-
まるく つつまれて
株式会社サンリフォーム
2025.11.17
- マンション
- 中古を買ってリノベーション
- 二人暮らし
- 家全体
- 水まわり
- 居室・その他
-
アールの向こう側
株式会社サンリフォーム
2025.11.17
- マンション
- 中古を買ってリノベーション
- 二人暮らし
- 家全体
- 水まわり
- 居室・その他
-
Folks Nest
株式会社サンリフォーム
2025.11.15
- マンション
- 中古を買ってリノベーション
- 二人暮らし
- 家全体
- 水まわり
- 居室・その他
-
Louver
株式会社サンリフォーム
2025.11.15
- マンション
- 持ち家をリノベーション
- 二人暮らし
- 家全体
- 水まわり
- 居室・その他
-
それぞれの基地
株式会社サンリフォーム
2025.11.15
- マンション
- 中古を買ってリノベーション
- 二人暮らし
- 家全体
- 水まわり
- 居室・その他
⼿掛けたリノベーション会社












築31年のマンションをフルリノベーション。
お気に入りのモノが暮らしの一部となる、施主様のお住まい。 山登りが趣味の奥様と、カメラを楽しむご主人。おふたりでキャンプにも出かけるというライフスタイルが、そのままインテリアにも表れています。 キッチンカウンターの棚にはご主人のカメラを、ワークスペースの壁には奥様の登山ギアを引っ掛けて収納。 趣味の道具が空間を彩りながら、見せる収納として整理のしやすさも実現しました。 日当たりの良い角部屋の窓際ではグリーンがすくすくと育ち、出窓のカウンターには旅の思い出を並べて、眺めを楽しめる心地よい場所に。 LDKの一角にあるヌックはコンパクトでおこもり感を演出しながら、内部に本棚を、ベンチ下も収納として活用できる実用性も確保しました。 また、リビングダイニングを横断する大きな梁には、梁下に沿って木製の大きなアールを設け、圧迫感を重厚なデザインに変える工夫を加えています。 住まいの象徴となる大きなアールが空間をやわらかくゾーニングし、ヌックの開口部に施した小さなアールとリンクすることで、全体にやさしい統一感を生み出しました。 透明な境界で区切りつつも光が巡り、アール越しに見える景色が何気ない日常も少し特別に感じさせてくれます。