淡路・長澤の古民家再生ー小さな繋がりの輪
事例をお気に入りに登録しました。
事例をお気に入りに登録しました。
2025.09.19
| 施工金額 | 3,600万円(税込) |
|---|---|
| 物件種別 | 戸建 |
| リノベーション形態 | 持ち家をリノベーション |
| リノベーション内容 | 水まわり,居室・その他 |
| 居住人数 | 3人 |
| 家族構成 | ファミリー |
| 築年数 | 165年 |
|---|---|
| エリア | 関西 |
| 面積 | 174.08㎡ |
| 施工期間 | 7ヶ月 |
| 構造 | 木造 |
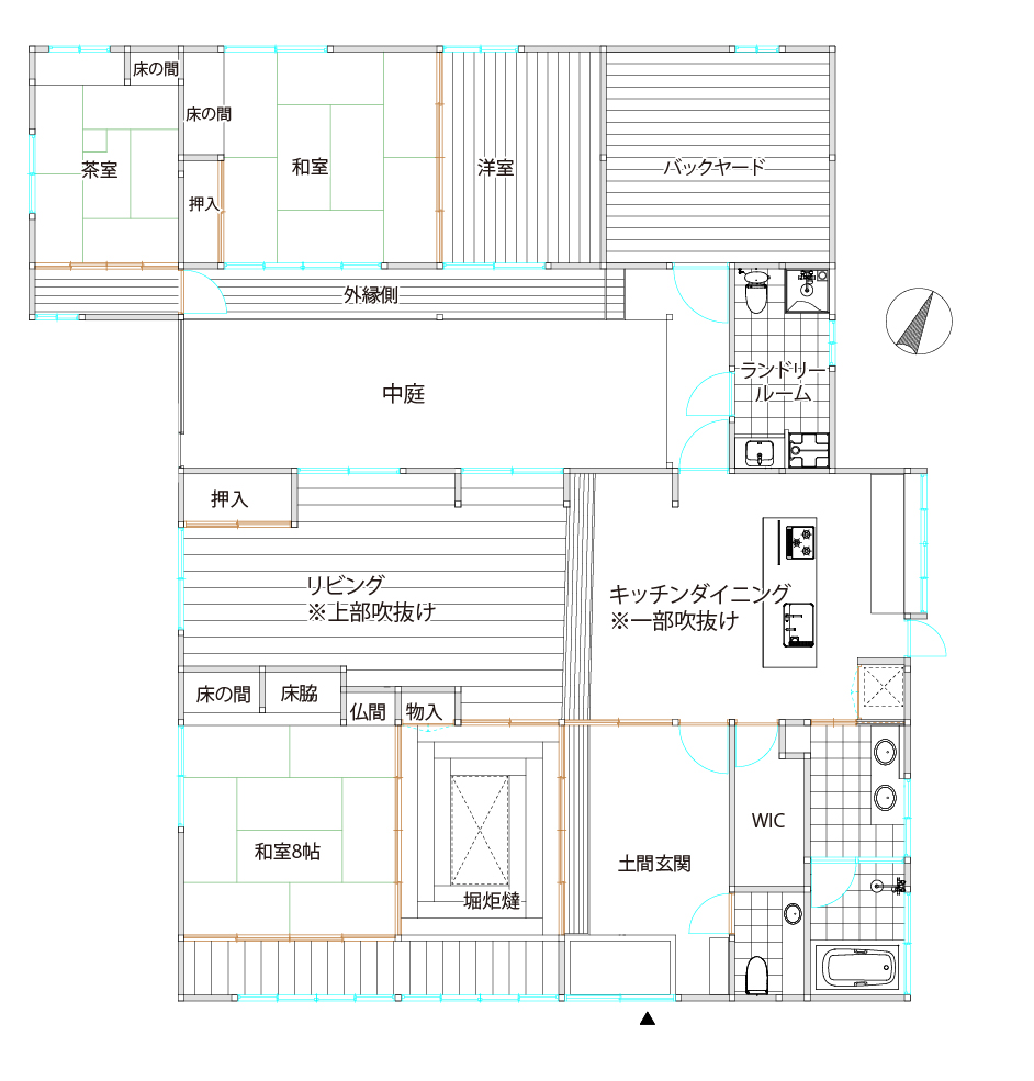
間取り
Before7DK+2N

After5LDK+N

⼿掛けたリノベーション会社
株式会社河原工房
| 所在地 | 〒569-1142 大阪府高槻市宮田町2-1-29 サンワビル102号 |
| 対応エリア | 京都府・大阪府・兵庫県・奈良県 |
| 連絡先 | 072-668-7170 |
この会社のリノベーション事例
-
時空を旅する洋館
株式会社河原工房
2022.09.19
- 戸建
- 一人暮らし
- 家全体
- 耐震補強
- 断熱改修
-
原点回帰リノベーション 人の手で蘇る『心の場』
株式会社河原工房
2020.09.23
- 戸建
- 家全体
-
住みたい気持ちがずっと続くお家
株式会社河原工房
2020.03.24
- 戸建
- 持ち家をリノベーション
- ファミリー
- 家全体
- 水まわり
- 居室・その他
- 屋外
- 耐震補強
-
安らぎの古民家に住まう
株式会社河原工房
2020.03.03
- 戸建
- 中古を買ってリノベーション
- ファミリー
- 家全体
- 水まわり
- 居室・その他
- 耐震補強
-
ひだまりな古民家リノベーション
株式会社河原工房
2020.02.27
- 戸建
- 持ち家をリノベーション
- ファミリー
- 水まわり
- 居室・その他
- 耐震補強
- 断熱改修
-
マイホーム・スローライフ~好きなものだけ!憧れの暮らし~
株式会社河原工房
2018.08.31
- 戸建
- 中古を買ってリノベーション
- ファミリー
- 家全体
- 水まわり
- 居室・その他
- 屋外
- 耐震補強
- 断熱改修
-
メゾネットタイプの中古マンション 諦めていた「憧れ」を工夫で実現!
株式会社河原工房
2019.04.02
- マンション
- 中古を買ってリノベーション
- ファミリー
- 家全体
- 水まわり
- 居室・その他
⼿掛けたリノベーション会社













淡路の奥座敷と呼ばれる長澤地区。ため池と棚田の景観に、水車小屋や昔ながらの農の営みが今も息づく里で施主様は育ちました。この古民家は、長澤地区の集落の一角に佇み、代々の記憶を刻んできた。幼い頃、施主様は共働きのご両親に代わり祖父母様と多くの時間を過ごされました。縁側から眺めた山の稜線、土間に漂う薪の匂い、祭りの日の賑わい…その一つひとつが心の原風景です。祖父母様の他界後、時を止めたように残された家には、懐かしさと同時に「ここで再び暮らしたい」という想いが芽生えていきました。その想いを後押ししたのは、近隣で弊社が手掛けた古民家再生。伝統を尊重しつつ若い世代にも誇れるデザインに触れ、「この家も未来へ活かせる」と確信されたのです。長澤地区が育む人と人とのつながり。昔ながらの風情が今も残るこの地だからこその古民家再生。一つの想いが、やがて地域に広がる輪となる。今回の再生は、そのささやかな一歩です。
再生された古民家は、かつての記憶を抱きながら、新しい暮らしの舞台へと生まれ変わりました。覆われていた大黒柱を現し、床上げされていた土間を戻し、柱や土壁をあえて意匠に残すことで、過去と今が同じ空間で息づいています。玄関横には来客用のトイレを新設し、日常とおもてなしを両立させました。土間と長式台が連なる空間は、往時をなぞりながらも洗練された迎えの間へ。奥に進めば、かまどを思わせるモルタルとステンレスの対面キッチンが広がり、二間続きだった「だいどこ」と「なんど」は板間のリビングへ。はしごを上がれば、地松の梁を間近に望むフリースペースが現れます。浴室は快適なユニットバスに、洗面には二つのボウルを備え、家族や親族が共に使える場となりました。「子供の頃は、この大黒柱を布で拭いたものよ」と施主様のお母様は懐かしみ、親族からは「新しいけど、懐かしいね」との声も。165年の歴史を刻む柱や梁は、その言葉に応えるように誇らしく佇んでいます。そして、この再生は一軒にとどまりません。2023年のROY にノミネートされたA様宅。その成功が施主様を導き、今回の挑戦が次の誰かへとつながっていく。古民家再生は建築だけでは完成せず、暮らしとコミュニティ、何よりその土地と共存してこそ未来に続きます。淡路島・長澤地区の古民家再生で芽生えた小さなつながりは、確実に広がりを見せ、静かに未来への輪を描いています。