手塩にかけて育てる家
事例をお気に入りに登録しました。
事例をお気に入りに登録しました。
| 施工金額 | 960万円(税込) |
|---|---|
| 物件種別 | マンション |
| リノベーション形態 | 持ち家をリノベーション |
| リノベーション内容 | 家全体,水まわり,居室・その他 |
| 居住人数 | 3人 |
| 家族構成 | ファミリー |
| 築年数 | 42年 |
|---|---|
| エリア | 関西 |
| 面積 | 71.00㎡ |
| 施工期間 | 2ヶ月半 |
| 構造 |
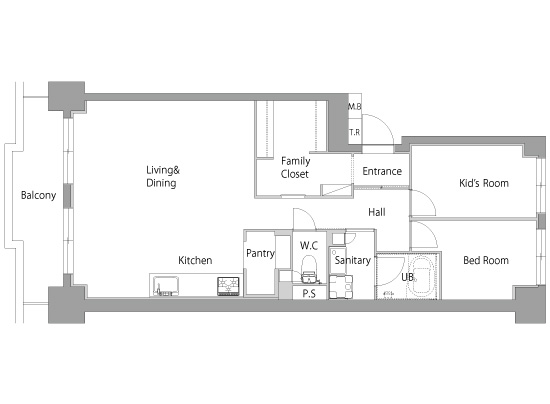
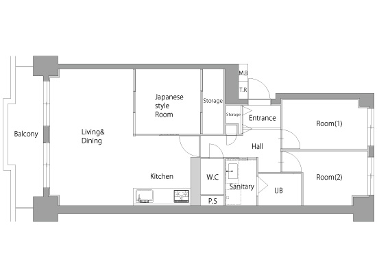
間取り
Before3LDK

After2LDK+WIC

⼿掛けたリノベーション会社
株式会社サンリフォーム(ハコリノベ)
| 所在地 | 〒550-0015 大阪府大阪市西区南堀江3-2-1 プラザ10ビル |
| 対応エリア | 東京都・神奈川県・京都府・大阪府・兵庫県 |
| 連絡先 | 0120-985-115 |
この会社のリノベーション事例
-
日々を味わう
株式会社サンリフォーム
2026.03.06
- マンション
- 持ち家をリノベーション
- 二人暮らし
- 家全体
- 水まわり
- 居室・その他
-
静謐な間 – tatema
株式会社サンリフォーム
2026.02.04
- マンション
- 中古を買ってリノベーション
- ファミリー
- 家全体
- 水まわり
- 居室・その他
-
住み継ぐ家
株式会社サンリフォーム
2025.12.19
- 戸建
- 持ち家をリノベーション
- 二世帯・三世帯
- 家全体
- 水まわり
- 居室・その他
-
canvas
株式会社サンリフォーム
2025.12.19
- マンション
- 中古を買ってリノベーション
- ファミリー
- 家全体
- 水まわり
- 居室・その他
-
透明な境界
株式会社サンリフォーム
2025.11.17
- マンション
- 中古を買ってリノベーション
- 二人暮らし
- 家全体
- 水まわり
- 居室・その他
-
まるく つつまれて
株式会社サンリフォーム
2025.11.17
- マンション
- 中古を買ってリノベーション
- 二人暮らし
- 家全体
- 水まわり
- 居室・その他
-
アールの向こう側
株式会社サンリフォーム
2025.11.17
- マンション
- 中古を買ってリノベーション
- 二人暮らし
- 家全体
- 水まわり
- 居室・その他
-
Folks Nest
株式会社サンリフォーム
2025.11.15
- マンション
- 中古を買ってリノベーション
- 二人暮らし
- 家全体
- 水まわり
- 居室・その他
⼿掛けたリノベーション会社













築41年のマンションをフルリノベーション。
ぴったりとスピーカーがおさまるTVボードは、なんと施主様の手作り。そんなセンス光るDIYスキルを活かした、文字通り一緒に作りあげる、味わい深い住まいができました。 LDKのブルーグレー色の壁はポーターズペイントで塗装。当初は塗装予定だったものの、バランスを見てあえて塗装せずに残した木巾木が空間の中で良い味をだす結果に。 こうしたライブ感溢れる家づくりでは、デザイナーとディレクターも驚きと楽しさを共有できました。 造作キッチンは収納扉を無しにしたオープンなスタイルに。ご自身で使い勝手を微調整できるキッチンは、施主の暮らし方に相性が良い収納スタイルです。 家族それぞれがゆったりとすごすLDKでは、壁付キッチンにすることでくつろぎスペースの確保を実現。 丸テーブルやL型ソファの広々としたダイニングでも余裕をもってレイアウトできました。 さらに、キッチンにもフローリングを張ることでLDKに一体感が生まれ、視覚的な広がりを与えます。 住まいの核となる部分はリノベ工事で整えながら、施主様も手を加える唯一無二の住まいは、家を訪れるお友達も「見たことない家!」と絶賛だとか。