Louver
事例をお気に入りに登録しました。
事例をお気に入りに登録しました。
| 施工金額 | 1,200万円(税込) |
|---|---|
| 物件種別 | マンション |
| リノベーション形態 | 持ち家をリノベーション |
| リノベーション内容 | 家全体,水まわり,居室・その他 |
| 居住人数 | 2人 |
| 家族構成 | 二人暮らし |
| 築年数 | 46年 |
|---|---|
| エリア | 関西 |
| 面積 | 83.60㎡ |
| 施工期間 | 2ヶ月半 |
| 構造 |
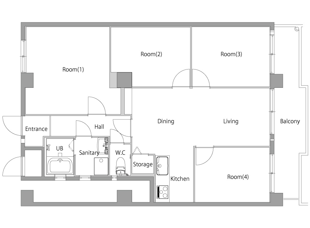
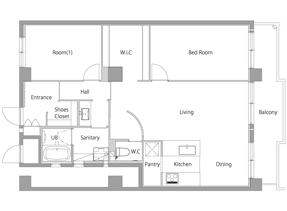
間取り
Before4LDK

After2LDK+WIC

⼿掛けたリノベーション会社
株式会社サンリフォーム(ハコリノベ)
| 所在地 | 〒550-0015 大阪府大阪市西区南堀江3-2-1 プラザ10ビル |
| 対応エリア | 東京都・神奈川県・京都府・大阪府・兵庫県 |
| 連絡先 | 0120-985-115 |
この会社のリノベーション事例
-
静謐な間 – tatema
株式会社サンリフォーム
2026.02.04
- マンション
- 中古を買ってリノベーション
- ファミリー
- 家全体
- 水まわり
- 居室・その他
-
住み継ぐ家
株式会社サンリフォーム
2025.12.19
- 戸建
- 持ち家をリノベーション
- 二世帯・三世帯
- 家全体
- 水まわり
- 居室・その他
-
canvas
株式会社サンリフォーム
2025.12.19
- マンション
- 中古を買ってリノベーション
- ファミリー
- 家全体
- 水まわり
- 居室・その他
-
透明な境界
株式会社サンリフォーム
2025.11.17
- マンション
- 中古を買ってリノベーション
- 二人暮らし
- 家全体
- 水まわり
- 居室・その他
-
まるく つつまれて
株式会社サンリフォーム
2025.11.17
- マンション
- 中古を買ってリノベーション
- 二人暮らし
- 家全体
- 水まわり
- 居室・その他
-
アールの向こう側
株式会社サンリフォーム
2025.11.17
- マンション
- 中古を買ってリノベーション
- 二人暮らし
- 家全体
- 水まわり
- 居室・その他
-
Folks Nest
株式会社サンリフォーム
2025.11.15
- マンション
- 中古を買ってリノベーション
- 二人暮らし
- 家全体
- 水まわり
- 居室・その他
-
それぞれの基地
株式会社サンリフォーム
2025.11.15
- マンション
- 中古を買ってリノベーション
- 二人暮らし
- 家全体
- 水まわり
- 居室・その他
⼿掛けたリノベーション会社













築45年のマンションをフルリノベーション。
2人暮らしのスタートを機にリノベーション。部屋や水まわり設備を広々と使える、ゆとりある空間づくりを目指しました。 住まいのシンボルとなる、アールに配置したルーバーはリビングからトイレへの動線を整理します。 ルーバーでゆるやかに区切ることで空間に奥行きが生まれ、リビングが広く感じられます。 また、ルーバーの間から差し込む光によって格子状に影がおちる様子も住まいの魅力の1つです。 インテリアでは木・ホワイト・ベージュのカラーを厳選してコーディネート。天井や壁とあわせてドアハンドルや照明といったパーツもカラーを揃えています。 さらに、テーブルやソファもカラーや素材がリンクすることで住まい全体の統一感がUPしました。 こうして1つ1つを丁寧に選び、組み合わせた空間では心豊かになり、これから始まるおふたりの暮らしにふさわしい空気感をまといます。