Folks Nest
事例をお気に入りに登録しました。
事例をお気に入りに登録しました。
| 施工金額 | 1,250万円(税込) |
|---|---|
| 物件種別 | マンション |
| リノベーション形態 | 中古を買ってリノベーション |
| リノベーション内容 | 家全体,水まわり,居室・その他 |
| 居住人数 | 2人 |
| 家族構成 | 二人暮らし |
| 築年数 | 14年 |
|---|---|
| エリア | 首都圏 |
| 面積 | 80.31㎡ |
| 施工期間 | 3ヶ月 |
| 構造 |
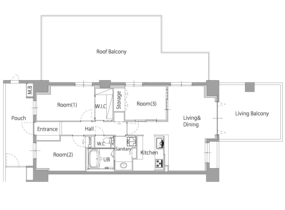
間取り
Before3LDK+WIC

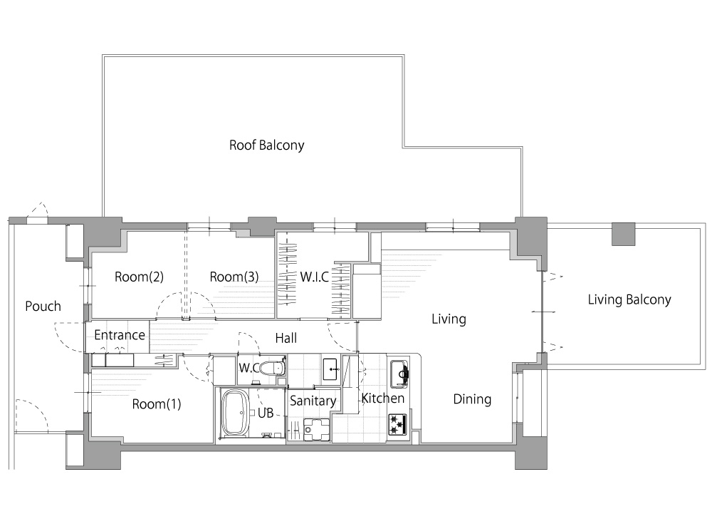
After3LDK+WIC

⼿掛けたリノベーション会社
株式会社サンリフォーム(ハコリノベ)
| 所在地 | 〒550-0015 大阪府大阪市西区南堀江3-2-1 プラザ10ビル |
| 対応エリア | 東京都・神奈川県・京都府・大阪府・兵庫県 |
| 連絡先 | 0120-985-115 |
この会社のリノベーション事例
-
アートと暮らす
株式会社サンリフォーム
2026.03.30
- マンション
- 中古を買ってリノベーション
- 二人暮らし
- 家全体
- 水まわり
- 居室・その他
-
ひとつづきにくらす
株式会社サンリフォーム
2026.03.25
- マンション
- 中古を買ってリノベーション
- 一人暮らし
- 家全体
- 水まわり
- 居室・その他
-
日々を味わう
株式会社サンリフォーム
2026.03.06
- マンション
- 持ち家をリノベーション
- 二人暮らし
- 家全体
- 水まわり
- 居室・その他
-
静謐な間 – tatema
株式会社サンリフォーム
2026.02.04
- マンション
- 中古を買ってリノベーション
- ファミリー
- 家全体
- 水まわり
- 居室・その他
-
住み継ぐ家
株式会社サンリフォーム
2025.12.19
- 戸建
- 持ち家をリノベーション
- 二世帯・三世帯
- 家全体
- 水まわり
- 居室・その他
-
canvas
株式会社サンリフォーム
2025.12.19
- マンション
- 中古を買ってリノベーション
- ファミリー
- 家全体
- 水まわり
- 居室・その他
-
透明な境界
株式会社サンリフォーム
2025.11.17
- マンション
- 中古を買ってリノベーション
- 二人暮らし
- 家全体
- 水まわり
- 居室・その他
-
まるく つつまれて
株式会社サンリフォーム
2025.11.17
- マンション
- 中古を買ってリノベーション
- 二人暮らし
- 家全体
- 水まわり
- 居室・その他
⼿掛けたリノベーション会社













築13年のマンションをフルリノベーション。
「家族や友達が集まる家」をテーマに、リビングにはダイニングテーブルやソファの居場所の他に、おこもりヌックや窓辺に配置した造作ベンチを作りました。 ベンチは座面と同じラワン材の背もたれを組み合わせることで、家具のような雰囲気に。 実際に20人程のゲストを迎えた際も「皆が座ってくつろげた」と話す施主様。 さらに、ゲストも気軽に使いやすい廊下に面したオープンな洗面台や玄関のベンチなど、おもてなしのアイデアが随所に取り入れられています。 元からお持ちだったアンティークの家具やラグ、小物もすべて居場所を決め、新しく迎えた家具も合流。 家族や友人が集まるシーンもあれば、自分たちの好きなものに囲まれて、それを眺めながら、ごろごろしながら、たまには籠りながら、様々な楽しみ方ができるおうちになりました。