家族の独立後に叶える、静かで豊かな暮らし
事例をお気に入りに登録しました。
事例をお気に入りに登録しました。
2025.12.23
| 施工金額 | 1,100万円(税込) |
|---|---|
| 物件種別 | マンション |
| リノベーション形態 | 中古を買ってリノベーション |
| リノベーション内容 | 水まわり,居室・その他 |
| 居住人数 | 2人 |
| 家族構成 | 二人暮らし |
| 築年数 | 18年 |
|---|---|
| エリア | 首都圏 |
| 面積 | 69.34㎡ |
| 施工期間 | 4か月 |
| 構造 | RC |
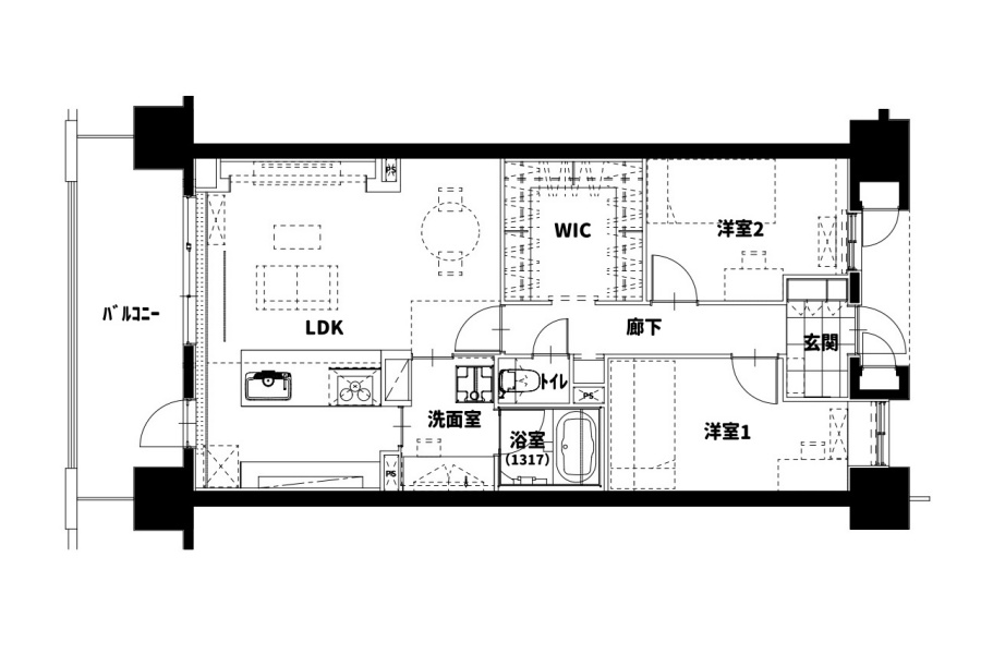
間取り
Before3LDK

After2LDK+S

⼿掛けたリノベーション会社
株式会社アールプラン
| 所在地 | 〒370-0075 群馬県高崎市筑縄町49-8 |
| 対応エリア | 茨城県・栃木県・群馬県・埼玉県・千葉県・東京都・神奈川県 |
| 連絡先 | 0120-64-1222 |
この会社のリノベーション事例
-
憧れの対面キッチンでLDKを開放的で快適な空間に。
株式会社アールプラン
2024.08.30
- 戸建
- 持ち家をリノベーション
- 二人暮らし
- 水まわり
- 居室・その他
-
都心からの移住。趣味と日常の調和を求めるリノベーション。
株式会社アールプラン
2024.04.02
- マンション
- 中古を買ってリノベーション
- 二人暮らし
- 水まわり
- 居室・その他
-
家族が集まる週末別荘
株式会社アールプラン
2019.08.29
- マンション
- 持ち家をリノベーション
- 家全体
- 水まわり
- 居室・その他
- 屋外
- 耐震補強
- 断熱改修
-
ヴィンテージシックな大人のリノベーション
株式会社アールプラン
2020.04.25
- マンション
- 中古を買ってリノベーション
- 一人暮らし
- 水まわり
- 居室・その他
-
子どもの成長を家族で見守り、喜びあえる二世帯住宅
株式会社アールプラン
2020.09.22
- マンション
- 持ち家をリノベーション
- 二世帯・三世帯
- 水まわり
- 居室・その他
-
エレガントなスタイルリノベーション
株式会社アールプラン
2021.08.17
- マンション
- 持ち家をリノベーション
- ファミリー
- 居室・その他
-
「居場所」
株式会社アールプラン
2022.09.20
- マンション
- 持ち家をリノベーション
- 一人暮らし
- 家全体
- 水まわり
- 居室・その他
- 屋外
- 断熱改修
-
男暮らし
株式会社アールプラン
2022.09.20
- マンション
- 持ち家をリノベーション
- 一人暮らし
- 家全体
- 水まわり
- 居室・その他
⼿掛けたリノベーション会社













駅近の好立地にあるマンションのリノベーションです。 家族が成長し独立していく中で今後の生活を見据え、すっきりとした理想の生活空間を実現したいとのご依頼です。
キッチンはオープンに、洗面室は既存よりも広く、使いやすくしたいとのご要望でした。
ゆったりとしたLDKと回遊性のある水廻り空間を一体的に計画することによって、住戸面積の半分近くをワンルーム的に感じる開放的な空間に仕立てました。
これまでの生活の中で、実際に過ごしている場所(部屋)や時間をヒアリングし、これからの住まい方に合わせてスペースの振り分けを提案しました。
個室を少しずつ縮小し、水廻りや滞在時間の長いLDK空間にスペースを多く確保する計画としています。併せて1部屋はウォークインクローゼットに作り替えることで、雑多な印象になりがちな洋服や小物をまとめて収納できるように配慮しました。
洗面室は日常的にも使いやすい回遊動線を確保しつつ、LDKと共通するイメージとすることで、一体感を感じられる空間として提案しました。
インテリアに使う色や素材感は、住戸全体のイメージを構築する中でバランスを考慮しながら選定・整理して採用することで、整然とした印象の空間を生み出しています。