素材と光に応える、本物志向の邸宅
事例をお気に入りに登録しました。
事例をお気に入りに登録しました。
2025.09.18
| 施工金額 | 3,485万円(税込) |
|---|---|
| 物件種別 | マンション |
| リノベーション形態 | 持ち家をリノベーション |
| リノベーション内容 | 水まわり,居室・その他 |
| 居住人数 | 2人 |
| 家族構成 | 二人暮らし |
| 築年数 | 20年 |
|---|---|
| エリア | 関西 |
| 面積 | 133.80㎡ |
| 施工期間 | 4ヶ月 |
| 構造 |
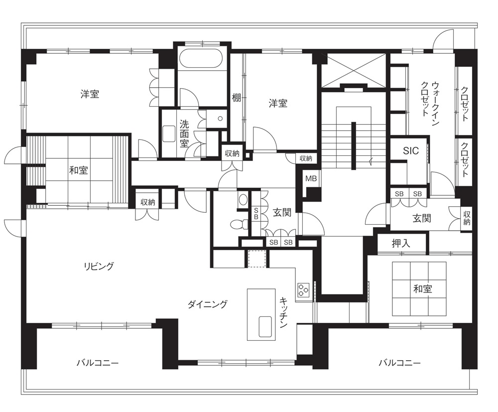
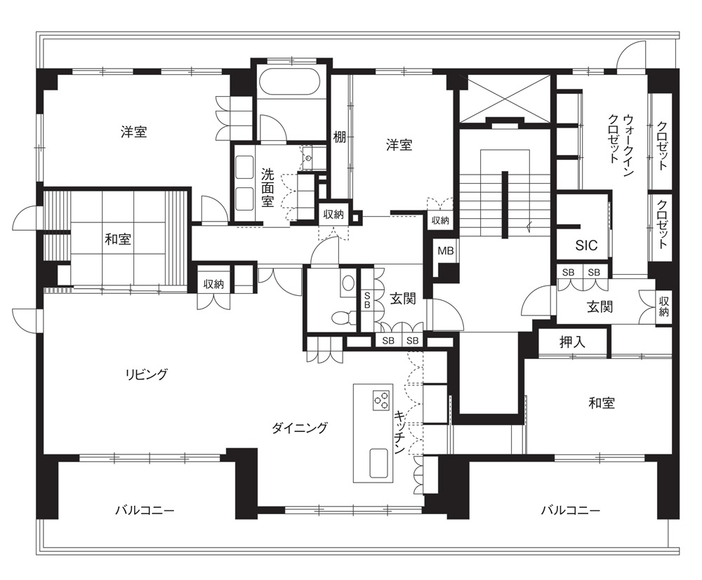
間取り
Before4LDK

After4LDK

⼿掛けたリノベーション会社
阪急阪神不動産株式会社(阪急阪神のリフォーム)
| 所在地 | 〒530-0012 大阪府大阪市北区芝田1-1-4 阪急ターミナルビル内 |
| 対応エリア | 京都府・大阪府・兵庫県 |
| 連絡先 | 06-6376-4757 |
この会社のリノベーション事例
-
My Home Bar
阪急阪神不動産株式会社
2025.09.20
- 戸建
- 中古を買ってリノベーション
- 一人暮らし
- 水まわり
- 居室・その他
-
つながり×ひろがり 家族が集まるリビング
阪急阪神不動産株式会社
2025.09.18
- 戸建
- 持ち家をリノベーション
- 二人暮らし
- 水まわり
- 居室・その他
-
リビングが家族の集合場所
阪急阪神不動産株式会社
2025.09.18
- マンション
- 持ち家をリノベーション
- ファミリー
- 居室・その他
-
都市の別荘
阪急阪神不動産株式会社
2025.08.29
- マンション
- リノベーション済み物件
- 二人暮らし
-
人生を穏やかに、丁寧に愉しむ
阪急阪神不動産株式会社
2025.08.29
- マンション
- リノベーション済み物件
- ファミリー
-
空へ続く私邸
阪急阪神不動産株式会社
2025.08.29
- マンション
- リノベーション済み物件
-
暮らしに合わせて変化する間取り。
阪急阪神不動産株式会社
2025.09.01
- マンション
- リノベーション済み物件
- ファミリー
-
公園の緑を楽しむ「ヌックスペース」があるリビングダイニング
阪急阪神不動産株式会社
2025.09.01
- マンション
- リノベーション済み物件
- 二人暮らし
⼿掛けたリノベーション会社













二拠点生活にて神戸・大阪にお住まいを持ち、これまで10年ごとに住み替えてこられたご夫妻が、今回は立地や環境を考慮して
既存住宅を改装する決断をされました。
重厚感ある内装でしたが、明るさと開放感を重視しながらも高級感を表現したいというご希望から、リフォームがスタート。
様々なリゾート地等で過ごしてきた経験を元にホテルライクな床タイルや、明るく洗練された建具への変更、夫婦で並んで使える広々とした
洗面室などのご要望がありました。
奥様はセンターキッチンと収納の機能性に、そしてご主人様はカウンター・水栓・取手などの素材選びに強いこだわりをお持ちでした。
高級感と心地よさを兼ね備えた住まいを目指し、「ラグジュアリー」をテーマに素材や照明計画を提案。
単に明るさや色味だけでなく、昼と夜で変化する光の質による素材の表情の違いに着目し、照明条件を変えた実物サンプルを用いて確認を重ねました。
既存の空間構成を活かしつつ、全体をより明るく開放感のあるデザインに刷新。折り上げ天井に間接照明を組み合わせ、親子仕様のアルミガラスドアによって奥行きと透明感を演出。
キッチン収納の裏側に和室通路を一体化させることで動線に配慮し、空間全体の統一感を高めました。
ご主人様には、カウンター、タイル、水栓、取手に至るまで厳選いただけるよう、多様な大判サンプルや仕上がり確認を実施。
奥様には清掃性や使い勝手の良さを重視し、実際に触れて・試して選べるようショールーム体験を繰り返しました。
技術的な工夫として、当初ご希望だった壁全面タイル貼りは冷たさや圧迫感を避けるため、キッチン扉と同柄の壁パネルとの組み合わせに変更。高級感と調和を保ちつつ、コストにも配慮した提案となりました。
既存の和室や間取りを活かしつつ、ご夫妻それぞれの理想に寄り添った空間を実現。費用対効果の高さに加え、素材・光・動線までこだわり抜いた提案力と対応により満足度の高いリノベーションが実現しました。