アールの向こう側
事例をお気に入りに登録しました。
事例をお気に入りに登録しました。
| 施工金額 | 1,370万円(税込) |
|---|---|
| 物件種別 | マンション |
| リノベーション形態 | 中古を買ってリノベーション |
| リノベーション内容 | 家全体,水まわり,居室・その他 |
| 居住人数 | 2人 |
| 家族構成 | 二人暮らし |
| 築年数 | 45年 |
|---|---|
| エリア | 関西 |
| 面積 | 75.60㎡ |
| 施工期間 | 3ヶ月 |
| 構造 |
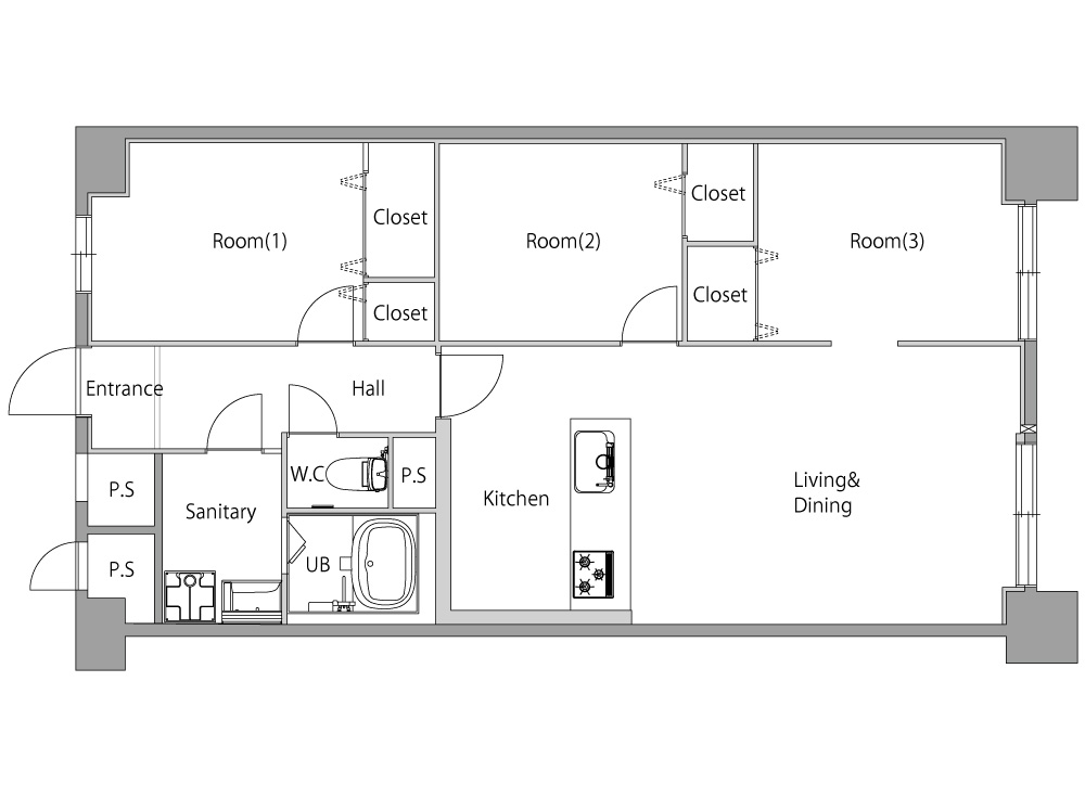
間取り
Before3LDK

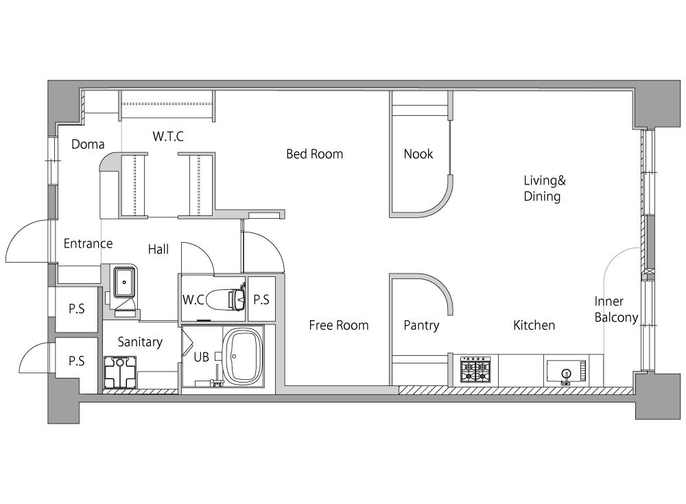
After2LDK+WTC

⼿掛けたリノベーション会社
株式会社サンリフォーム(ハコリノベ)
| 所在地 | 〒550-0015 大阪府大阪市西区南堀江3-2-1 プラザ10ビル |
| 対応エリア | 東京都・神奈川県・京都府・大阪府・兵庫県 |
| 連絡先 | 0120-985-115 |
この会社のリノベーション事例
-
アートと暮らす
株式会社サンリフォーム
2026.03.30
- マンション
- 中古を買ってリノベーション
- 二人暮らし
- 家全体
- 水まわり
- 居室・その他
-
ひとつづきにくらす
株式会社サンリフォーム
2026.03.25
- マンション
- 中古を買ってリノベーション
- 一人暮らし
- 家全体
- 水まわり
- 居室・その他
-
日々を味わう
株式会社サンリフォーム
2026.03.06
- マンション
- 持ち家をリノベーション
- 二人暮らし
- 家全体
- 水まわり
- 居室・その他
-
静謐な間 – tatema
株式会社サンリフォーム
2026.02.04
- マンション
- 中古を買ってリノベーション
- ファミリー
- 家全体
- 水まわり
- 居室・その他
-
住み継ぐ家
株式会社サンリフォーム
2025.12.19
- 戸建
- 持ち家をリノベーション
- 二世帯・三世帯
- 家全体
- 水まわり
- 居室・その他
-
canvas
株式会社サンリフォーム
2025.12.19
- マンション
- 中古を買ってリノベーション
- ファミリー
- 家全体
- 水まわり
- 居室・その他
-
透明な境界
株式会社サンリフォーム
2025.11.17
- マンション
- 中古を買ってリノベーション
- 二人暮らし
- 家全体
- 水まわり
- 居室・その他
-
まるく つつまれて
株式会社サンリフォーム
2025.11.17
- マンション
- 中古を買ってリノベーション
- 二人暮らし
- 家全体
- 水まわり
- 居室・その他
⼿掛けたリノベーション会社












築45年のマンションをフルリノベーション。
「モノよりコト、コトよりヒト」施主様が大切にされる想いがベースとなったこちらの住まい。 人を基軸にした空間づくりは、各所のデザインや使い勝手に反映されています。 住まいの象徴であるLDKの「アール壁」。 ヌックやパントリーといった小さな場所を、アールでやわらかく囲うことで、ワンルームに近いひとつづきの空間を印象づける場所に仕上がりました。 また、壁の高さを低くしたオープンスペースにすることで、閉塞感の緩和や換気のしやすさにつながります。 壁や天井はお気に入りのホテルを参考にしたベージュで塗装し、随所にオーク材をアクセントに使うことで、コンクリートやモルタル、マットなグレーといった冷たさのある素材と組み合わせても、空間全体はあたたかみのある落ち着いた雰囲気に。 壁付けのキッチンはオリジナルで製作し、広めのシンクや引き出し内部の内引き出しなど、使いやすさの工夫が充実しています。 さらに、キッチンの壁から一筆書きのようにつながるタイルはインナーテラスへと伸び、植物を手入れするための場所に。床を1段下げているので、水や土を気兼ねなく使えます。 こうして一つ一つ丁寧に選ばれたものが日々の暮らしに自然と馴染み、人の気配や暮らしぶりが住まいに生き生きとした空気感をもたらします。